WE HELP YOU STAY HERE SQUARE - 1.jpg
 
 

Almost everyone thinks they need more space. And in this city space equals money. This can make it impossible to feel like you can get what you need -especially families- in Vancouver.

We totally disagree with this mentality. Moving away or investing in a bigger space aren’t necessarily the only options for families in Vancouver. We think that, more than space, what's needed are better designed and built spaces.

Small space living -done right- has so many benefits. Besides spending less on square footage, you’ll also save on furniture. As with custom-built cabinetry, most of it is built in. Keeping every room organized and clean all of a sudden becomes easier, and so is living in a space that is functional, cozy and thoughtfully designed.

Can a family of 3 live comfortably in 700 sq. ft.?

Our latest project, Main St Loft, is the perfect example of how to live well, but small. When our clients approached us wanting to renovate their 700 sq.ft. loft, we were delighted. The owners and their designer wanted to create privacy and an organized, efficient space for them and their 2 year old. But without losing the open feel of their loft. It was a great collaboration that resulted in an inspiring space.

 
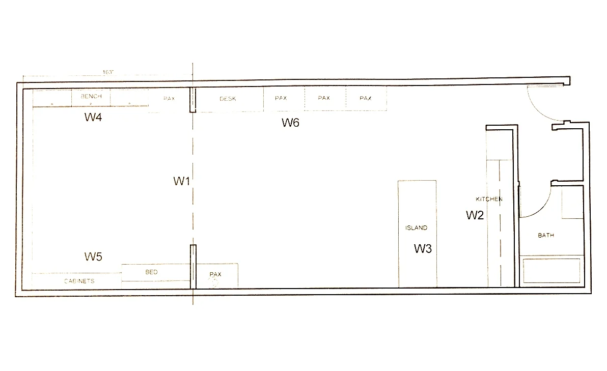
PLAN.jpg
 

These are the solutions to maximize their space.

 
 

The first problem to solve was storage, so we built cabinetry along both walls, and matching built-in storage cabinets in several areas.

 
 
20181013_WattWrks_Loft_webres_5Q0A9719.jpg

We added a built-in desk.

 
 
 
20181013_WattWrks_Loft_webres_5Q0A9697.jpg
20181013_WattWrks_Loft_webres_5Q0A9926.jpg

A built-in bench with added storage.

 
 
 
20181013_WattWrks_Loft_webres_5Q0A9675.jpg
20181013_WattWrks_Loft_webres_5Q0A9670.jpg

Cabinets above the couch.

 
 
 
20181013_WattWrks_Loft_webres_5Q0A9652.jpg
BED.jpg
 
 

A murphy bed.

 
 
20181013_WattWrks_Loft_webres_5Q0A9827.jpg
20181013_WattWrks_Loft_webres_5Q0A0067.jpg

Sliding room dividers.

 
20181013_WattWrks_Loft_webres_5Q0A0157.jpg
20181013_WattWrks_Loft_webres_5Q0A0138.jpg
 
 

New doors to match existing kitchen.

 
20181013_WattWrks_Loft_webres_5Q0A0071.jpg

Thank you so much for following along! If you have any questions and/or want to talk to us about maximizing your existing space through custom cabinetry, please feel free to reach out. We’d love to work with you!

 
Get in touch
 

Designer, Genta Ishimura.

Photography by Amanda Palmer.